売買物件詳細
- TOP
- chevron_right売買物件詳細
札幌市北区北三十一条西6丁目 中古マンション
- 札幌市北区北三十一条西6丁目
- 中古マンション
- 3,780万円
画像をクリックすると拡大します。画像をタップすると拡大します。
- 物件名
- 札幌市北区北三十一条西6丁目 中古マンション
- 価格
- 3,780万円
- 住所
- 北海道札幌市北区北三十一条西6丁目113-20
アルビオ・ガーデン北31条 1103
- 築年月
- 令和6年8月
- 建物構造
- 鉄筋コンクリート(RC)造 11階建
- 用途地域/地目
- 第2種中高層住居専用地域
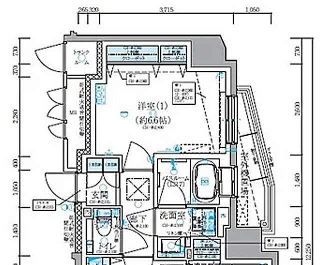
- 専有面積(壁芯)
- 55.7㎡(16.84坪)
- バルコニー面積
- 5.74㎡
- 間取り
- 2LDK
(リビングダイニングキッチン13.6帖・洋室6.6帖・洋室4.5帖)
- 主要採光面
- 南東
- 所在階
- 11階/11階建
- 総戸数
- 31戸
- 管理費
- 12,500円
- 修繕積立金
- 5,800円
- 土地権利
- 所有権
- 駐車場
- 空無
- 現況
- 空家
- 引渡
- 相談
- 取引態様
- 媒介
- 仲介手数料
- 1,313,400円(税込)
- 備考
- 〇築浅物件(未使用)
〇札幌市営地下鉄南北線「北34 条」駅まで徒歩6分
〇駐輪場
〇IH クッキングヒーター
〇床暖房
〇都市ガス
〇バリアフリー
〇オートロック
〇コンロ3口以上
〇シャワー付洗面化粧台
〇宅配BOX
〇防犯カメラ
〇最上階
お問い合わせ先
宅建免許番号 北海道知事 十勝(1)第780号/
北海道宅地建物取引業協会 会員
栄徳不動産(栄徳合同会社)
- 0155-65-0827
FAX:0155-65-0828
営業時間 9:00〜17:00(月~土) - お問い合わせフォーム
- 企業情報



















